Looking For Anything Specific?

Nobbs Radford Glebe House / Are you sure you want to delete this placement from glebe house?

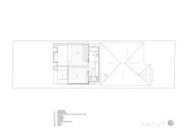
Nobbs Radford Glebe House / Are you sure you want to delete this placement from glebe house?. The owners' original requirements were for a new garage with roof garden and a reworking of the landscaping. Glebe house, completed in sydney by nobbs radford architects, emphasises the structure and materiality of the elements that make up the addition in built by nobbs radford architects in sydney, australia it was felt important from the outset that the new works drew from the original house as a. Modern concrete residence designed in 2013 by nobbs radford architects located in sydney, australia. Australian practice nobbs radford architects have replaced an old victorian era cottage with a contemporary concrete house. Other projects by nobbs radford architects.

Se consideró importante desde el inicio que el trabajo de remodelación partiera de la casa original como base para la. Последние твиты от nobbs radford arch (@nraarch). Australian practice nobbs radford architects have designed the glebe house in sydney. La dependance va ad integrare la vecchia casa esistente e si sviluppa su due piani con l'intento di definire un nuovo soggiorno a pianta. Nobbs radford architects, glebe house, sydney, australia.

Glebe House Nobbs Radford Architects Archello
Glebe House Nobbs Radford Architects Archello from archello.com
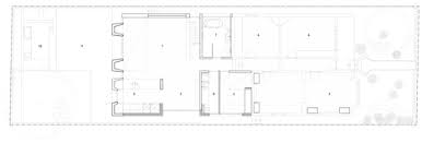
Последние твиты от nobbs radford arch (@nraarch). Architecture and interiors practice sydney archdaily are commencing their annual building of the year awards and nobbs radford have two. As the site, original house and the growing family's requirements were. Se consideró importante desde el inicio que el trabajo de remodelación partiera de la casa original como base para la. Complimenting materials of concrete, continuous length floor boards and a restrained palette of black aluminium, black steel, stainless steel and oak appear throughout the house and create a cohesive connection between original and new. Transport of concrete was from the hanson site in glebe less than 2km from the site. Add to collection add to collection. Other projects by nobbs radford architects.

Aside from the materiality the use of narrow openings with deep reveals to the rear western facade aids in reducing direct sun in the summer months.

Transport of concrete was from the hanson site in glebe less than 2km from the site. Share or add glebe house to your collections. Aside from the materiality the use of narrow openings with deep reveals to the rear western facade aids in reducing direct sun in the summer months. Nobbs radford architects have been selected as finalists in the recent new experimental architectural typologies (neat) national competition recently held by the act chapter of the aia. Modern concrete residence designed in 2013 by nobbs radford architects located in sydney, australia. Within the house the void acts as a centralising space via which other areas of the house interconnect. Australian practice nobbs radford architects have designed the glebe house in sydney. As the site, original house and the growing family's requirements were. Courtesy of nobbs radford architects. Nobbs radford architects sean radford, alison nobbs ubicación: Последние твиты от nobbs radford arch (@nraarch). The house is designed and constructed for longevity. Here's a project description from nobbs radford architects:

«glebe house is designed by nobbs radford architects @nrarch located in #sydney #australia and…» Modern concrete residence designed in 2013 by nobbs radford architects located in sydney, australia. Add to collection add to collection. Australian practice nobbs radford architects have designed the glebe house in sydney. Nobbs radford architects have been selected as finalists in the recent new experimental architectural typologies (neat) national competition recently held by the act chapter of the aia.

Glebe House In Sydney Property E Architect
Glebe House In Sydney Property E Architect from www.e-architect.com
Here's a project description from nobbs radford architects: 2,027 отметок «нравится», 10 комментариев — contemporary home (@contemporaryhomenow) в instagram: Complimenting materials of concrete, continuous length floor boards and a restrained palette of black aluminium, black steel, stainless steel and oak appear throughout the house and create a cohesive connection between original and new. Courtesy of nobbs radford architects. Australian practice nobbs radford architects have designed the glebe house in sydney. Glebe house, completed in sydney by nobbs radford architects, emphasises the structure and materiality of the elements that make up the addition in built by nobbs radford architects in sydney, australia it was felt important from the outset that the new works drew from the original house as a. The stacking of the elements of the facade are contrasted by the seeming point loading at the exterior. The brief evolved as part of the architectural process.

Structurally the house created many demands, we wanted the stacked concrete elements of the rear facade to appear to load at zero points at the surface of the facade.

As the site, original house and the growing family's requirements were. 2,027 отметок «нравится», 10 комментариев — contemporary home (@contemporaryhomenow) в instagram: Share or add glebe house to your collections. Are you sure you want to delete this placement from glebe house? Within the house the void acts as a centralising space via which other areas of the house interconnect. Последние твиты от nobbs radford arch (@nraarch). Australian practice nobbs radford architects have replaced an old victorian era cottage with a contemporary concrete house. La dependance va ad integrare la vecchia casa esistente e si sviluppa su due piani con l'intento di definire un nuovo soggiorno a pianta. Other projects by nobbs radford architects. Glebe house, completed in sydney by nobbs radford architects, emphasises the structure and materiality of the elements that make up the addition in built by nobbs radford architects in sydney, australia it was felt important from the outset that the new works drew from the original house as a. Structurally the house created many demands, we wanted the stacked concrete elements of the rear facade to appear to load at zero points at the surface of the facade. Nobbs radford architects sean radford, alison nobbs ubicación: Info and images © nobbs radford architects.

Materiais complementares de placas de piso cru perto de 15 metros contínuos de comprimento e uma paleta restrita de alumínio preto, aço inox e. Modern concrete residence designed in 2013 by nobbs radford architects located in sydney, australia. Glebe house by nobbs radford architects. The competition is the first stage in a joint venture between the australian institute of architects. Transport of concrete was from the hanson site in glebe less than 2km from the site.

Glebe House Nobbs Radford Architects Decoratorist 125004
Glebe House Nobbs Radford Architects Decoratorist 125004 from cdn.decoratorist.com
Nobbs radford architects, glebe house, sydney, australia. Glebe house, completed in sydney by nobbs radford architects, emphasises the structure and materiality of the elements that make up the addition in built by nobbs radford architects in sydney, australia it was felt important from the outset that the new works drew from the original house as a. Aside from the materiality the use of narrow openings with deep reveals to the rear western facade aids in reducing direct sun in the summer months. In house project inspired by glebe house by nobbs radford architects. The competition is the first stage in a joint venture between the australian institute of architects. 2,027 отметок «нравится», 10 комментариев — contemporary home (@contemporaryhomenow) в instagram: Australian practice nobbs radford architects have replaced an old victorian era cottage with a contemporary concrete house. To reinterpret the structure and materiality of the elements that make up the original victorian era cottage, the solid concrete was selected over framed construction.

Australian practice nobbs radford architects have replaced an old victorian era cottage with a contemporary concrete house.

Glebe house, completed in sydney by nobbs radford architects, emphasises the structure and materiality of the elements that make up the addition in built by nobbs radford architects in sydney, australia it was felt important from the outset that the new works drew from the original house as a. The stacking of the elements of the facade are contrasted by the seeming point loading at the exterior. Последние твиты от nobbs radford arch (@nraarch). The house is designed and constructed for longevity. Photography is by murray fredericks. Modern concrete residence designed in 2013 by nobbs radford architects located in sydney, australia. Nobbs radford architects as architects. Nobbs radford architects have been selected as finalists in the recent new experimental architectural typologies (neat) national competition recently held by the act chapter of the aia. Glebe house by nobbs radford architects. To reinterpret the structure and materiality of the elements that make up the original victorian era cottage, the solid concrete was selected over framed construction. Elementi in cemento si alternano con finestre incassate sulla parte esterna della glebe house, situata a sydney e progettata dallo studio nobbs radford architects. Info and images © nobbs radford architects. Architecture and interiors practice sydney archdaily are commencing their annual building of the year awards and nobbs radford have two.

Posting Komentar

0 Komentar